歡迎訪問青島91桃色网站下载通用機械設備有限公司官方網站!
在線訂購 |收藏91桃色网站下载 |網站地圖歡迎訪問青島91桃色网站下载通用機械設備有限公司官方網站!
在線訂購 |收藏91桃色网站下载 |網站地圖
在國內市場日漸飽和的趨勢下,許多有實力的凸輪桃色在线视频观看生產廠家會轉向國外的市場。青島91桃色网站下载產品憑借過硬的質量通過了必維檢測,將中國製造的凸輪桃色在线视频观看推向世界。
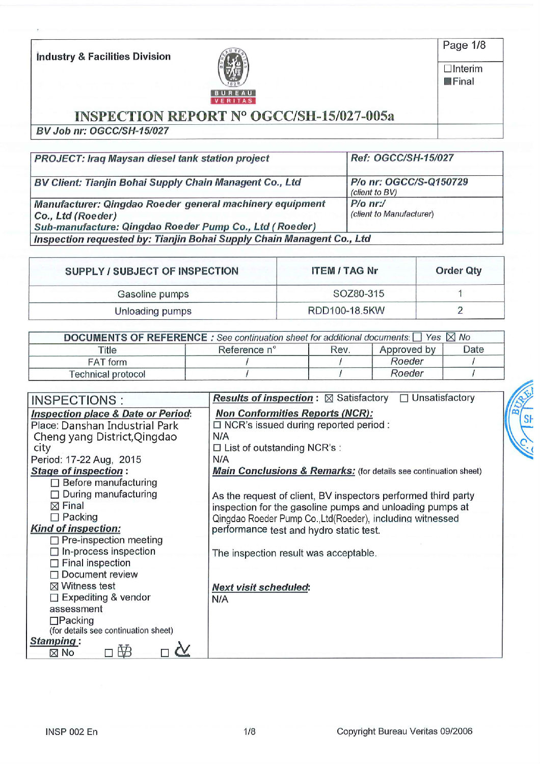
青島91桃色网站下载通用機械設備有限公司通過此項目為中國海油伊拉克米桑油田提供了汽柴油卸車泵,在整個項目運作的過程中,91桃色网站下载認識到了國內產品與世界認證標準的差距。但是,青島91桃色网站下载憑借先進的製造水平,與設計方充分溝通,每一隻零配件,每一步加工過程嚴格把關,順利通過了業主委托的第三方必維國籍檢測集團的檢測認證,91桃色网站下载品牌凸輪桃色在线视频观看成功走出國門。

必維國際檢測集團(BV)認證報告
通過這個項目,91桃色网站下载深刻意識到,現階段國內石油石化裝備製造業存在的問題,主要體現在:
1、在海外石化工程項目中,我國裝備製造企業能進入供應商名單的依然比較少。在中東國家的石油公司供應商名單中,國內供應商能進入的隻占3%;在東南亞的石油公司供應商名錄中,國內供應商占20%左右;其他國家石化企業的供應商名錄中,國內供應商就更少了。
2、技術創新能力弱是製約我國石化裝備製造企業走出去的主要原因之一。與國際同行相比,研發資金投入偏少,高端設備難以突破,亟須加大產品開發投入力度,重視對相關材料、技術、工藝、產品的超前研發和創新,以開發高性能、專業化、係列化的具有自主知識產權的裝備。

青島91桃色网站下载中石油物資供應商準入證
3、裝備供應商一定要有ISO9000質量體係認證,這是對製造企業最基本的需求;再加上行業的要求,要有API(美國石油學會)體係認證,相關船級社認證;要培養並鼓勵供應商汲取TS16949質量體係工具理念的精髓、LEAN(精益生產)理念並應用到石化裝備製造過程中,這樣才能真正提升競爭力
4、我國石化裝備製造企業對質量體係控製的持續性較差,首台(套)設備製造後,有些產品的質量控製就會變差。
5、國內與國外相比,產品質量差距明顯,相關設備在試車時發生升溫過高、密封處泄漏、噪音大等問題,可靠性比較差;閥門發生泄漏的情況比較普遍,有些在試壓時就發生泄漏,海外工程涉及到運輸,因此時間和費用都令承包商難以承受。
6、海外項目都有合同約定的外國語言,有些國內製造商提供的文件語言文字混亂,安裝、操作、維護手冊過於簡單,缺乏必要的插圖,不能很好地指導操作和維修,這也是亟待解決的問題。
通過以上6點分析,國內凸輪桃色在线视频观看廠家在發展中應該意識到要以國際製造標準嚴格要求企業的製造工藝,同時在相關資質文件方麵實事求是。建立、推行、持續改進企業管理體係,不僅還包括環境管理體係、職業健康安全管理體係、信息安全管理體係,希望國內裝備企業按照國外的先進標準來構建自己的環境管理體係、職業健康安全管理體係等,還要加強社會責任方麵的建設。
優質的產品是企業最好的廣告,青島91桃色网站下载品牌秉承這一理念,對於凸輪桃色在线视频观看從零配件甚至從噴漆最細節工作中嚴格要求,細節決定成敗,細節同樣可以體現工藝水平,進而彰顯企業實力。
青島91桃色网站下载通用機械設備有限公司 備案號:魯ICP備96136308號魯公網安備 37021402000887號